Thursday, January 11, 2024

測量業の衰退を救いたい!JFDエンジニアリングによる業界を進化させる新たな技術「3D敷調」の誕生秘話と測量業の ... - 岩手日報

misaltag.blogspot.com

 

 JFDエンジニアリングは測量会社として2005年に創業しました。住宅を建築する際に必要な「現況測量」を主業務としています。現在は測量業以外にも、住宅建築に必要な地盤調査・地盤改良工事・土壌汚染調査などを行っておりますが、出発点は測量。

 私たちのアイデンティティである測量は、約50年前から大きな技術進歩がない状態。このままではDXの波から取り残され、人材不足に陥り衰退してしまう....測量業をなんとか救いたい!そんな思いから開発されたのが「3D敷調®」でした。本ストーリーでは、「3D敷調」がどのようにして開発されたのか、サービスの誕生のきっかけや開発にかける想いについてお伝えします。

建築前の調査から図面作成まで。専門知識と経験が必要な現況測量の基本

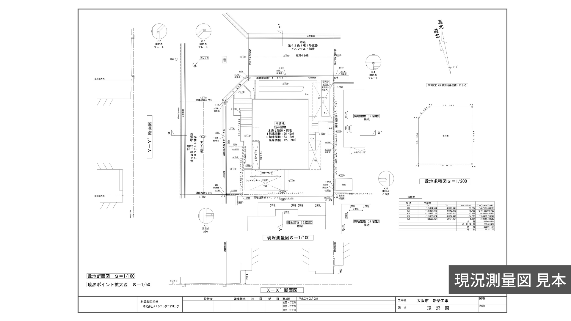
 家などを建築する際に土地の広さ・高さなどを測量、敷地の調査をし、現況測量図と呼ばれる図面を作成することを現況測量と言います。土地の位置や大きさだけではなく、境界標や隣地との間にあるフェンス、土地に接する道路など土地の状況を把握できる図面が現況測量図です。この現況測量図を基にして建物が計画されるため、建築前には必ずこの現況測量が必要になります。

 現況測量を行うには専用の測量機械を使い、測量学の専門知識が必要です。この測量作業は1人では行えず、必ず2人以上で作業しなければなりません。そして土地で測量するだけではなく、土地の情報を図面化しなければならないため図面作成の知識も必要です。この、測量から図面作成までの一連の作業を同一の人員が行うことが基本です。

人材不足による今後への不安から、新技術の開発へ挑戦

 建設業界の深刻な人材不足は測量業も例外ではありません。測量はメジャーな職種ではない上、専門知識や経験が必要。さらに測量作業から図面作成まで行うため労働時間が長くなりがち。門扉が狭く、労働条件は良くない....人材は不足する一方です。

 測量を行う人が少なくなれば測量業は衰退してしまう。専門知識がなくても測量することが出来、さらに労働時間を短縮する方法を見つけなければ未来はない。測量会社としてこの課題を解決する使命がある。そんな思いから「次世代の測量技術」の開発がスタートしました。

ドローンの検証、そして3Dスキャナーの活用へ。測量の新たな可能性を探る

 次世代の測量技術開発がスタートした2016年当時はドローンが世間一般に台頭し始めた時期。ドローンを測量にも活用できないかと検証を始めました。しかしドローンでの測量は安定せず、測量精度が課題に。他にもドローン稼働時の騒音が住宅街では懸念点となり、地域によっては使用申請が必要なことも障害になりました。

そして次に検証したのが3Dスキャナー。この3Dスキャナーが現在、私たちの相棒です。

 3Dスキャナーでの測量は、現場の空間をそのまま丸っとデータ化するもの。現場空間をデータにして持ち帰ることができるのです。この特徴が現況測量と相性が良く、高スペックの3Dスキャナーを使用することで測量に求められる精度もクリアすることができました。3Dスキャナーの使用には測量学の知識は不要、誰でも測量出来ます。さらに、3Dスキャナーは1人で使用することが出来るので、測量人員は従来式と比べ二分の一で運用可能。そして現場をそのままデータ化するため、現地で測量した人員以外に情報を共有でき、図面作成の分業も可能に。これなら測量業が抱える課題を解決できる!3Dスキャナーでの測量に可能性を見出しました。

 しかし、課題もありました。現況測量で作成・納品するのは現況測量図、2Dの図面です。3Dデータをお客様にお渡ししても、すぐに受け入れてもらうのは難しいことが予想出来ました。そして3Dスキャナーは従来式の測量機器に比べとても高価なため、現況測量図を納品するだけでは採算不足に。3Dスキャナーで現況測量を行うためには、現況測量図以外の製品・サービスの開発も必須でした。

現況測量図に付加価値を。「3D敷調」の誕生とさらなるサービス「ARパース」の開発

 3Dの敷地データをお客様に活用していただける場面はないか....私たちが普段納品している現況測量図を活用いただくのは主に設計担当の方ですが、お客様の会社全体に目を向けると活用の機会が見えてきました。私たちのお客様である建築会社の方は、営業担当・工務担当・外構担当など、それぞれ担当の方々が現地へ赴き現場の状況を確認の上、お打ち合わせされます。3Dの現場データがあれば現地確認の回数を減らし、お客様の負担を減らせるのでは?そう考え、従来式の現況測量図にプラスの付加価値として”3Dの敷地調査データ”を納品する「3D敷調」が誕生しました。

 そしてお客様に3D敷調を使っていただく中で生まれたアイディアを元に、3D敷調の敷地データに建築パースを掛け合わせた「ARパース」が誕生しました。ARパースはただ単に敷地データに建築パースデータを併せただけのものではなく、仮想現実(AR)内の敷地に家を建て、365日24時間の太陽の動きを表現し、採光シミュレーションを行えるサービスです。リビングの窓からの採光など、実際の敷地の条件でシミュレーションが行えます。こうして3D敷地データは建築会社の方に社内で使用していただく”建築の専門家だけが使えるサービス”ではなく、その先にいらっしゃる"建築主様"とのお打ち合わせにも使用していただけるサービスへと進化を遂げました。

×

測量業の変革はまだまだこれから。新たな技術開発と社会貢献を目指して

 3Dスキャナーでの測量で、誰でも測量できる環境整備への第一歩は踏み出しました。そして、国外へ測量図面の作図専門CADセンターを設立し、測量員の労働時間短縮のため図面作成作業を分業することに成功しました。

 現在では、測量業にもドローンや3Dスキャナーを導入する企業は増加してきました。しかし、まだまだ従来式の測量方式が台頭しています。測量業の変革期は始まったばかり。測量業を衰退させないためにも新たな技術開発に取り組み、3D敷調を通して測量業を変えるだけでなく、社会と環境にも貢献する事業へと成長し続けることを目指していきます。

行動者ストーリー詳細へ
PR TIMES STORYトップへ

Adblock test (Why?)


からの記事と詳細 ( 測量業の衰退を救いたい!JFDエンジニアリングによる業界を進化させる新たな技術「3D敷調」の誕生秘話と測量業の ... - 岩手日報 )
https://ift.tt/bVDvyp5
Share:

0 Comments:

Post a Comment